Navigeren

×

Wasstraat 33

2313 JG LEIDEN
Asking price € 1.025.000,- k.k.
Woonoppervlakte
186 m2
Perceel oppervlakte
198 m2
Aantal kamers
9
Aantal slaapkamers
6
Bijzonderheden
Beschermd stads of dorpsgezicht
Aanvaarding
In overleg
Bouw
Objecttype
Woonhuis
Bouwjaar
1920
Oppervlakte
Woonoppervlakte
186 m2
Buitenruimtes gebouwgebonden of vrijstaand
13 m2
Gebruiksoppervlakte overige functies
0 m2
Perceel oppervlakte
198 m2
Inhoud
660 m3
Indeling
Aantal kamers
9
Aantal slaapkamers
6
Energie
Energieklasse
D
Isolatievormen
Gedeeltelijk dubbelglas
Soorten verwarming
CV ketel
Soorten warm water
CV ketel
Voorzieningen
Mechanische ventilatie
Buitenruimte
Liggingen
In woonwijk
Tuintypen
Achtertuin
Opbergruimte
Soort
Vrijstaand steen
Garage
Soorten
Geen garage

Wasstraat 33

2313 JG LEIDEN
Asking price € 1.025.000,- k.k.

Karakteristiek herenhuis met uitzonderlijk diepe tuin in de geliefde Professorenwijk

In één van de meest begeerde woonwijken van Leiden – de sfeervolle Professorenwijk – staat dit zeer royale en karaktervolle herenhuis boordevol authentieke details. De woning ademt charme dankzij de hoge plafonds, klassieke elementen en de indrukwekkend diepe achtertuin van ruim 20 meter. Een unieke plek voor wie royaal wil wonen en droomt van een huis dat volledig naar eigen smaak kan worden gemoderniseerd.

De Professorenwijk staat bekend om haar rustige, groene karakter en statige uitstraling. Brede straten, fraaie gevels en een prettige woonmix van gezinnen, young professionals en academici maken dit tot een bijzonder geliefde buurt. Alle dagelijkse voorzieningen bevinden zich letterlijk om de hoek: buurtwinkels, een bakker, supermarkt en diverse scholen zijn op loopafstand, terwijl het historische centrum van Leiden binnen enkele minuten per fiets bereikbaar is.

Ook qua bereikbaarheid is de ligging uitstekend. Station Leiden Lammenschans ligt op korte fietsafstand, bushaltes bevinden zich nabij en via de A4 en A44 zijn steden als Den Haag, Amsterdam en Schiphol snel en eenvoudig te bereiken.

Leiden zelf biedt het beste van twee werelden: de levendigheid van een historische universiteitsstad met grachten, musea, parken en een breed aanbod aan horeca, gecombineerd met volop groen en ontspanning, zoals de populaire Singelpark-route rondom de binnenstad.

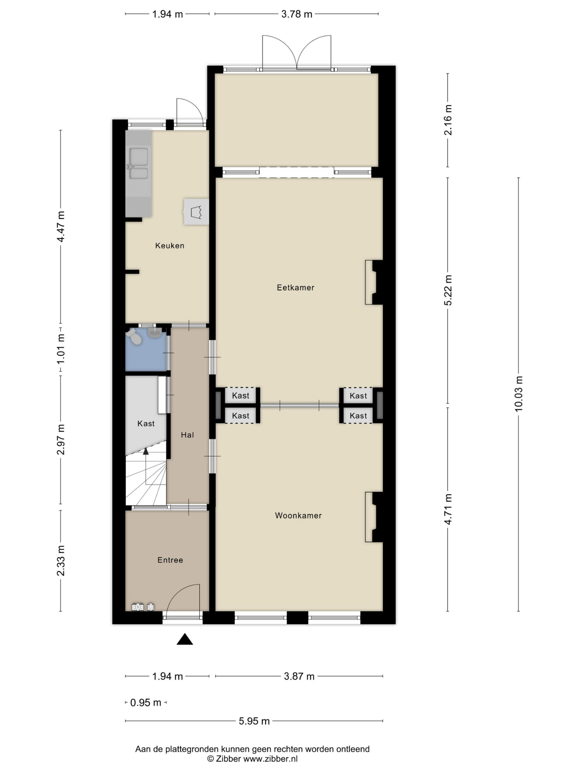
INDELING

Begane grond
Via de entree met hal en trapopgang bereik je de ruime woonkamer aan de voorzijde. De hoge plafonds en grote ramen zorgen voor veel licht en een gevoel van ruimte. Aangrenzend ligt een tweede zit- of eetkamer, eveneens royaal bemeten. De dichte keuken bevindt zich aan de tuinzijde en biedt toegang tot het terras. Verder zijn er op de begane grond een toiletruimte, trapkast en extra bergruimte aanwezig.

Eerste etage
De overloop geeft toegang tot drie grote slaapkamers, allen volwaardige ruimtes. De badkamer bevindt zich aan de achterzijde, met daarnaast een separaat toilet. Aan de tuinzijde ligt bovendien een fraai dakterras van circa 12 m², dat prachtig uitzicht biedt over de enorme tuin.

Tweede etage
Hier bevinden zich nog eens drie slaapkamers én een extra kamer met pantry (mogelijke wasruimte, hobbykamer of tweede badkamer). Ook is er een berging aanwezig.

Tuin
De woning beschikt over een buitengewoon diepe achtertuin (ruim 30 meter), zoals zichtbaar op de plattegrond. Achterin staat een separate berging (5,7 m²). De tuin biedt talloze mogelijkheden:
• aanleg van terrassen
• speelruimte voor kinderen
• moestuin
• aanbouw of tuinkantoor (vergunningsafhankelijk)
Een tuin van dit formaat in de Professorenwijk is zeldzaam.

BIJZONDERHEDEN

• Gelegen in beschermd stadsgezicht
• Ouderdomsclausule van toepassing
• Niet-bewonersclausule van toepassing

Plan een bezichtiging

Neem contact op met:

Michiel de Jong RM

m.dejong@graalmakelaardij.nl

+31 (0)71 - 51 61 000 / +31 (0)6 - 18 71 88 87

Of geef uw voorkeur door: