Navigeren

×

Plantsoen 71

2311 KJ LEIDEN
Asking price € 1.525.000,- k.k.
Woonoppervlakte
327 m2
Perceel oppervlakte
194 m2
Aantal kamers
13
Aantal slaapkamers
9
Bijzonderheden
Monument, Beschermd stads of dorpsgezicht
Aanvaarding
In overleg
Bouw
Objecttype
Woonhuis
Bouwjaar
1881
Dak type
Mansardedak
Oppervlakte
Woonoppervlakte
327 m2
Buitenruimtes gebouwgebonden of vrijstaand
5 m2
Gebruiksoppervlakte overige functies
0 m2
Perceel oppervlakte
194 m2
Inhoud
1.142 m3
Indeling
Aantal kamers
13
Aantal slaapkamers
9
Energie
Isolatievormen
Gedeeltelijk dubbelglas
Soorten verwarming
CV ketel
Soorten warm water
CV ketel
Voorzieningen
Mechanische ventilatie, TV kabel, Rookkanaal, Dakraam, Glasvezel kabel
Buitenruimte
Liggingen
Aan park, Aan rustige weg, In centrum, In woonwijk, Vrij uitzicht
Tuintypen
Voortuin, Patio atrium
Opbergruimte
Garage
Soorten
Geen garage

Plantsoen 71

2311 KJ LEIDEN
Asking price € 1.525.000,- k.k.

Voorname 19e-eeuwse stadsvilla met ruime tuin en uitzicht over park en singels.

In het verleden keek men op deze plaats vanaf de stadsmuren uit over de velden. Bij de uitbreiding van de stad in de 19e eeuw zijn de oude muren geslecht en werden op de oude stadswallen parken aangelegd, die sinds enkele jaren tezamen het Singelpark vormen, een groene buffer tussen de levendige binnenstad en de woonwijken eromheen.

Het Plantsoen vormt door zijn omvang en ligging de parel aan de kroon, waarbij direct voor de deur het park op zijn breedst is. De paden slingeren door het groen rondom een vijver en langs de singel, waardoor het parkgevoel nog meer wordt benadrukt.

De woningen aan het Plantsoen hebben ieder hun eigen uitstraling met één gemeenschappelijk kenmerk: ruimte! Hoge plafonds met stuc elementen, grote raampartijen met lichtinval van voor naar achteren en veel woonoppervlak. En voor deze woning geldt: héél véél woonoppervlak!

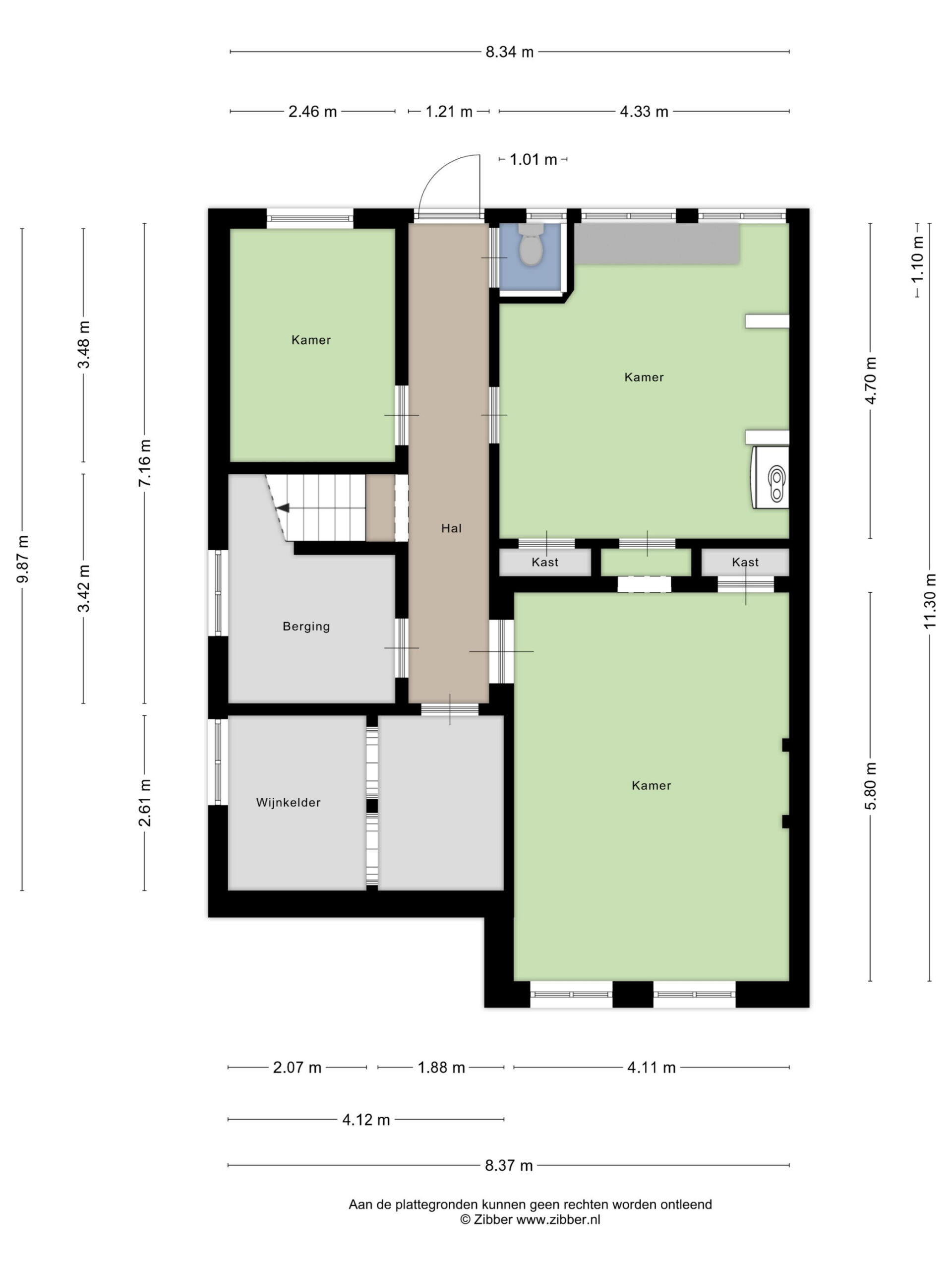
Maar liefst 327 vierkante meter wordt verdeeld over vier woonlagen, waarbij de originele indeling nog goed is terug te zien:
• Het souterrain met achteringang, waar in het verleden vooral het personeel kwam. Hier werd gekookt (de grote schouw is nog aanwezig), gewassen en wijn en voorraden opgeslagen.?
• De bel-etage, toegankelijk via de voortuin en de indrukwekkende entree met bordes. Hier werden de gasten ontvangen en was het de bedoeling dat ze werden geïmponeerd door de marmeren vloer in voorportaal en hal, het imposante trappenhuis en de hoge, rijkversierde plafonds en grote raampartijen in de kamer en suite. Hier vind je ook de ruime woonkeuken.
• De eerste etage met de slaapvertrekken en de badkamer van de familie. Ook deze verdieping kenmerkt zich door het hoge, rijk versierde stuc plafond, de grote raampartijen en vooral het grandioze uitzicht over het park.
• De tweede etage, met de slaapvertrekken voor inwonend personeel en veel ruimte voor opslag.

Liefhebbers van wonen in de binnenstad in een rustige parkachtige omgeving met alles wat je zoekt op loop- en fietsafstand kunnen hier hun hart ophalen. Sportclubs, (middelbare) scholen, cultuur, horeca, treinstations: alles binnen enkele minuten bereikbaar.

Plan een bezichtiging

Neem contact op met:

Michiel de Jong RM

m.dejong@graalmakelaardij.nl

+31 (0)71 - 51 61 000 / +31 (0)6 - 18 71 88 87

Of geef uw voorkeur door: