Navigeren

×

Galgewater 11

2311 VZ LEIDEN
Asking price € 1.025.000,- k.k.
Woonoppervlakte
129 m2
Perceel oppervlakte
95 m2
Aantal kamers
5
Aantal slaapkamers
2
Aanvaarding
In overleg
Bouw
Objecttype
Woonhuis
Bouwjaar
1650
Dak type
Mansardedak
Oppervlakte
Woonoppervlakte
129 m2
Buitenruimtes gebouwgebonden of vrijstaand
6 m2
Gebruiksoppervlakte overige functies
0 m2
Perceel oppervlakte
95 m2
Inhoud
455 m3
Indeling
Aantal kamers
5
Aantal slaapkamers
2
Energie
Energieklasse
E
Isolatievormen
Dakisolatie, Muurisolatie, Vloerisolatie, Gedeeltelijk dubbelglas, Grotendeels dubbelglas
Soorten verwarming
CV ketel, Open haard, Vloerverwarming gedeeltelijk
Soorten warm water
CV ketel
Voorzieningen
Mechanische ventilatie
Buitenruimte
Liggingen
Aan rustige weg, In centrum, In woonwijk, Vrij uitzicht, Beschutte ligging
Tuintypen
Achtertuin
Opbergruimte
Soort
Vrijstaand hout
Voorzieningen
Voorzien van elektra
Garage
Soorten
Geen garage

Galgewater 11

2311 VZ LEIDEN
Asking price € 1.025.000,- k.k.

Rustig wonen met een schitterend vergezicht en een royale, zonnige stadstuin.

Aan een stille, autoluwe kade in het hart van de historische Leidse binnenstad staat dit karaktervolle grachtenpand, een plek waar verleden en heden elkaar op de mooiste manier ontmoeten. Niet alleen de Romeinen stonden hier al rond het begin van de jaartelling, maar op nog geen 100 meter stond Rembrandt’s geboortehuis.

Waar ooit de oude stadsmuren de stad bewaakten, ontvouwt zich nu een betoverend uitzicht over het Galgewater, met haar monumentale panden en klassieke schepen. Het pand ademt de charme van de vroege 20e eeuw, met hoge plafonds, prachtige lichtinval en authentieke details die de ziel van het huis laten spreken.

Een zeldzaamheid in de binnenstad is de besloten achtertuin op het zonnige zuiden: circa zeven meter diep en zes meter breed. Een oase van rust, verscholen achter de gevels. Compleet met eigen berging én achterom vormt dit een uniek stadsprivilege.

Binnen is de afwerking warm en stijlvol: strak gestuukte wanden, historische steentjes en eikenhouten vloerdelen geven het geheel een tijdloze elegantie.

Met Leiden Centraal en de markt op loopafstand, en alle voorzieningen, cafés en musea binnen handbereik, woon je hier midden in de stad maar met de rust van een dorps straatje. Parkeren kan voor de deur, en via de A4 en A44 bereik je snel de rest van de Randstad.

INDELING

Begane grond
Entree met meterkast. Hal met wasmachineopstelling, trap naar de 1e etage en binnendoor naar de berging en de keuken. Ruime woonkeuken met inbouwapparatuur en openslaande deuren naar de tuin.

1e etage
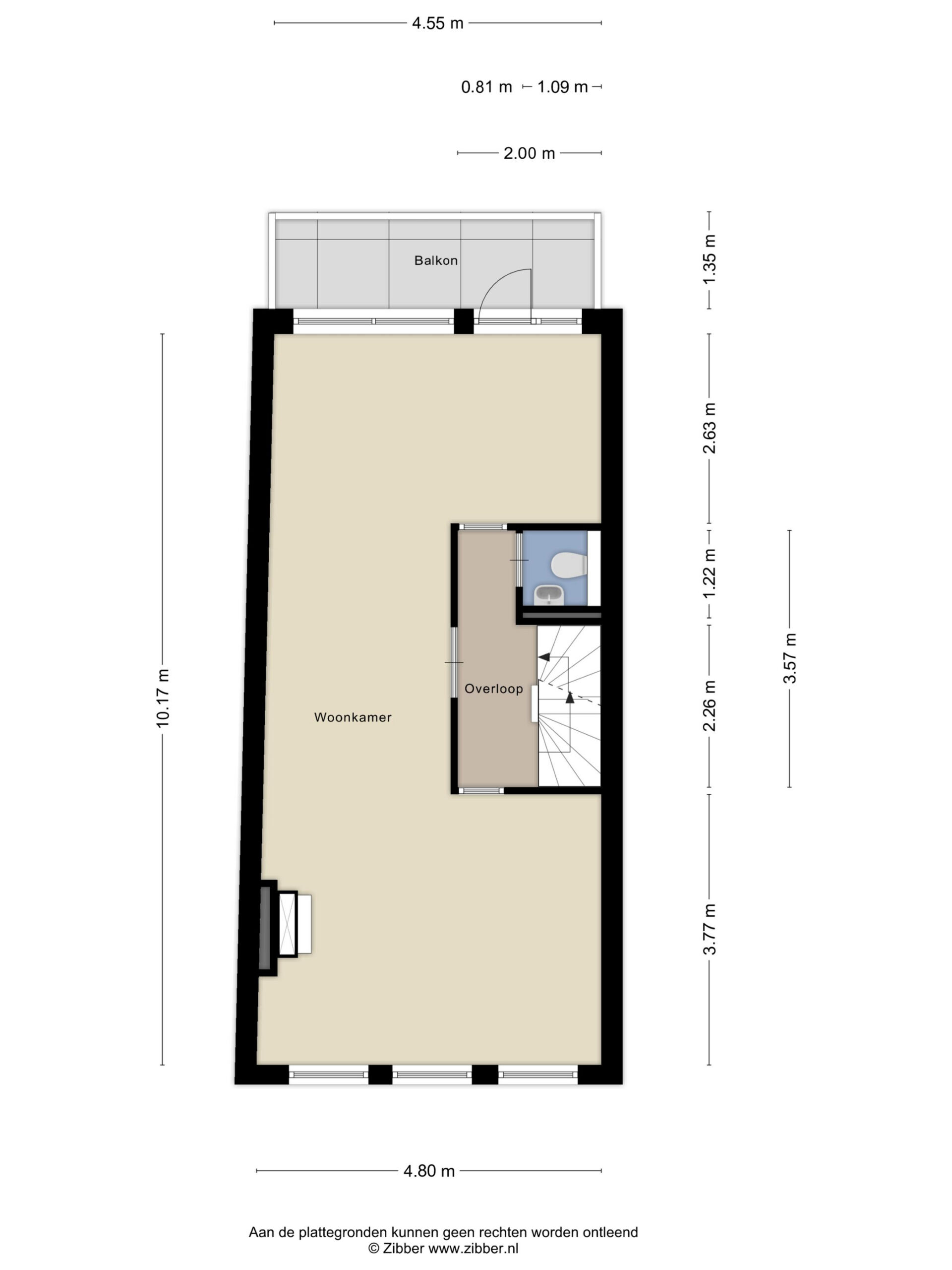
Overloop met toilet en trap naar de 2e etage. Voorkamer met hoge balkenplafonds, open haard en een prachtig uitzicht over het Galgewater. Achterkamer met openslaande deuren naar het dakterras.

2e etage
Overloop. Ruime slaapkamers met hoge balkenplafonds aan voor- en achterzijde. Moderne badkamer met douche, wc en wastafel.

Bergvliering

Tuin
Achtertuin met veel privacy, fietsenberging en achterom.

BIJZONDERHEDEN

– Beschermd stadsgezicht
– Niet-bewonersclausule
– Ouderdomsclausule
– Niet-bewonersclausule
– Recent geheel geschilderd aan buitenzijde
– In 2001 onder architectuur gerestaureerd incl. moderne technische installaties en warmte-isolatie waar mogelijk
– Notaris voor het transport: TeekensKarstens te Leiden

Plan een bezichtiging

Neem contact op met:

Michiel de Jong RM

m.dejong@graalmakelaardij.nl

+31 (0)71 - 51 61 000 / +31 (0)6 - 18 71 88 87

Of geef uw voorkeur door: