Navigeren

×
Verhuurd o.v.b

Lammermarkt 214

2312 CW LEIDEN
Rental price € 1.224,- p.m.
Woonoppervlakte
60 m2
Aantal kamers
2
Aantal slaapkamers
1
Bijzonderheden
Gestoffeerd
Aanvaarding
In overleg
Bouw
Objecttype
Appartement
Bouwjaar
1999
Dak type
Plat dak
Oppervlakte
Woonoppervlakte
60 m2
Buitenruimtes gebouwgebonden of vrijstaand
5 m2
Gebruiksoppervlakte overige functies
0 m2
Inhoud
194 m3
Indeling
Aantal kamers
2
Aantal slaapkamers
1
Energie
Energieklasse
A
Isolatievormen
Dakisolatie, Muurisolatie, Dubbelglas
Soorten verwarming
CV ketel
Soorten warm water
CV ketel
Voorzieningen
Mechanische ventilatie
Buitenruimte
Tuintypen
Zonneterras
Opbergruimte
Soort
Inpandig
Garage
Soorten
Parkeerkelder

Lammermarkt 214

2312 CW LEIDEN
Rental price € 1.224,- p.m.

Goed verzorgd appartement in het centrum van Leiden met een zonnig balkon!

Dit heerlijke 2-kamerappartement is klaar om direct te betrekken: alles is tot in de puntjes verzorgd! Een ruime keuken met alle mogelijke inbouwapparatuur, een ruime slaapkamer en een badkamer met inloopdouche en separate wc.

Het gezellige centrum van Leiden en alle dagelijkse voorzieningen zijn binnen handbereik. Station Leiden Centraal ligt op korte fietsafstand, en ook de uitvalswegen richting Den Haag en Amsterdam zijn eenvoudig bereikbaar.

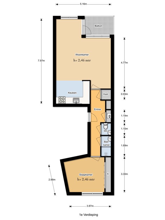
INDELING

Entree
Centrale hal met brievenbussen en videofoon.

Appartement
Hal met videofoon. Ruime woonkamer met luxe open keuken met inbouwapparatuur en balkon op het zuiden. Aan de achterzijde van het appartement is de ruime slaapkamer gelegen. Badkamer met inloopdouche, vloerverwarming en wastafel. Moderne wc separaat van badkamer met fontijntje. Aparte kast met wasmachine en droger.

Berging
Ruime berging in de kelder onder het complex.

Parkeerplaats
In de kelder onder het complex is de parkeerplaats gelegen.

BIJZONDERHEDEN

– per direct beschikbaar
– minimale huurperiode 12 maanden
– geen studenten of delers
– huisdieren in overleg
– roken niet toegestaan
– privé parkeerplaats: € 195,- per maand
– servicekosten: € 25,- per maand
– wasmachine en droger aanwezig

PROCEDURE

– wij plannen de eerste 10 aanvragen voor een bezichtiging in. Alle andere aanvragen komen op een reservelijst.
– graag in uw aanvraag benoemen wat de gezinssamenstelling is en of huisdieren, roken en parkeren van toepassing zijn.
– de minimale inkomseis is 3,5 de maandhuur, ofwel een minimaal bruto maandinkomen van € 4.300,-

Plan een bezichtiging

Neem contact op met:

Of geef uw voorkeur door: