Navigeren

×

Kalvermarkt 10

2312 LL LEIDEN
Asking price € 635.000,- k.k.
Woonoppervlakte
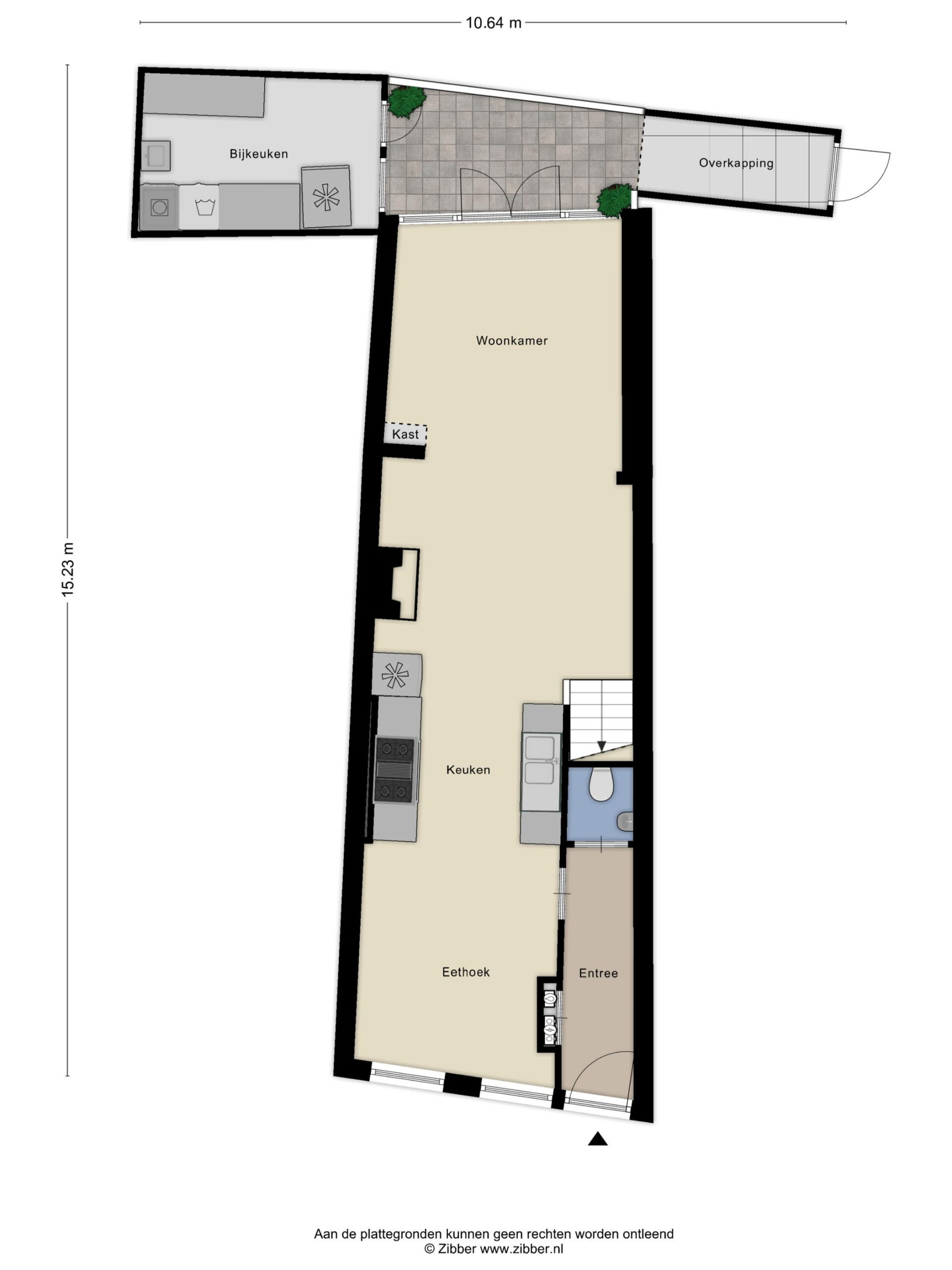
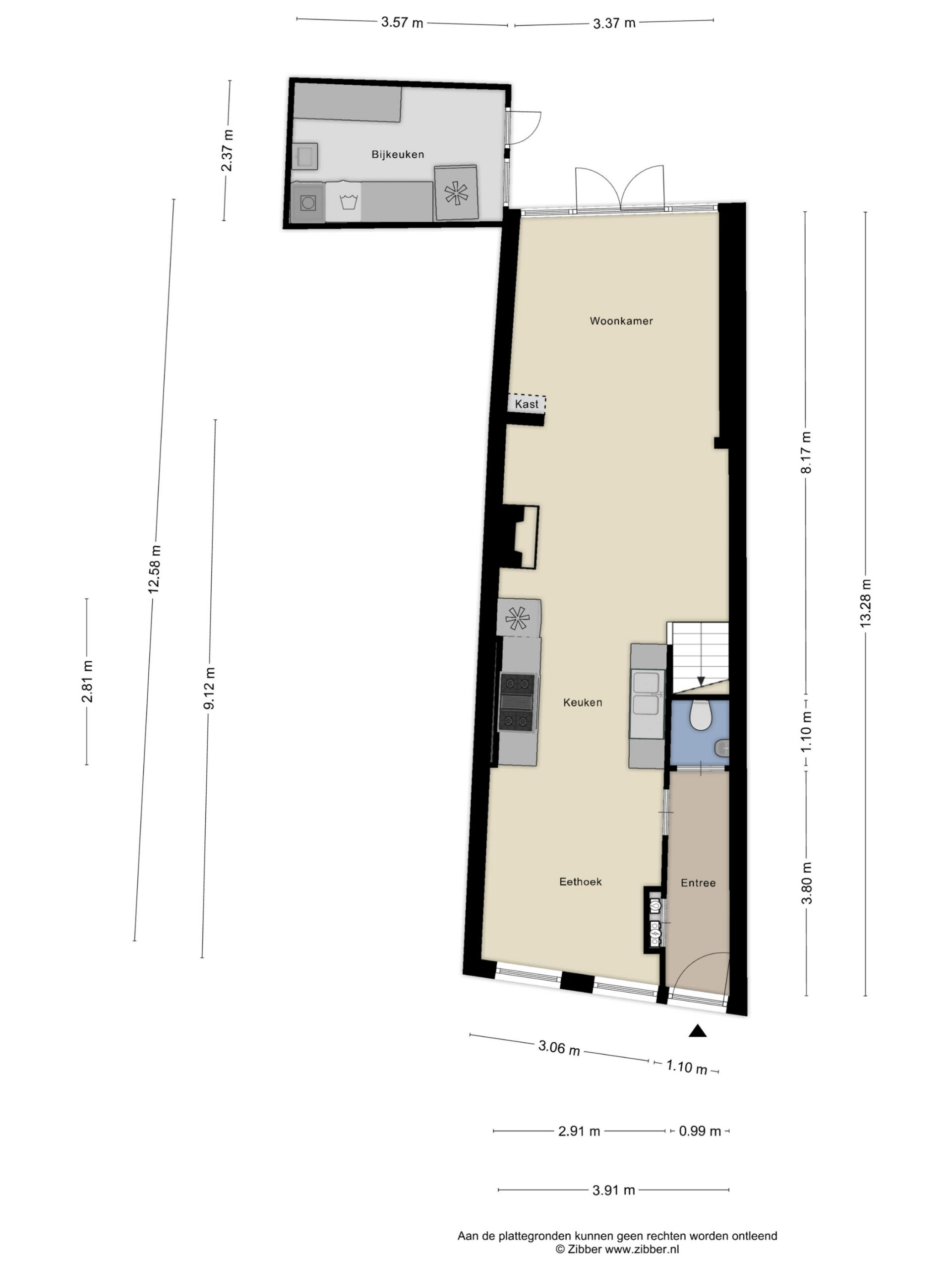
98 m2
Perceel oppervlakte
82 m2
Aantal kamers
5
Aantal slaapkamers
3
Bijzonderheden
Monumentaal pand, Monument, Beschermd stads of dorpsgezicht
Aanvaarding
In overleg
Bouw
Objecttype
Woonhuis
Bouwjaar
1750
Dak type
Zadeldak
Oppervlakte
Woonoppervlakte
98 m2
Buitenruimtes gebouwgebonden of vrijstaand
14 m2
Gebruiksoppervlakte overige functies
0 m2
Perceel oppervlakte
82 m2
Inhoud
347 m3
Indeling
Aantal kamers
5
Aantal slaapkamers
3
Energie
Isolatievormen
Dakisolatie, Vloerisolatie, Gedeeltelijk dubbelglas
Soorten verwarming
CV ketel, Open haard
Soorten warm water
CV ketel
Voorzieningen
Mechanische ventilatie, TV kabel, Rookkanaal, Dakraam, Glasvezel kabel
Buitenruimte
Liggingen
Aan rustige weg, In centrum, In woonwijk, Vrij uitzicht
Tuintypen
Achtertuin
Opbergruimte
Soort
Vrijstaand kunststof
Garage
Soorten
Geen garage

Kalvermarkt 10

2312 LL LEIDEN
Asking price € 635.000,- k.k.

Wonen in eeuwenoude historie, met het comfort van nu.

Midden in het historische hart van Leiden, aan de sfeervolle Kalvermarkt, ligt dit instapklare rijksmonument uit 1750 met tuin, dakterras en achterom. Een unieke plek waar de rijke stadsgeschiedenis voelbaar is in elke straat, terwijl u geniet van hedendaags wooncomfort en verrassend veel buitenruimte.

De Kalvermarkt maakt deel uit van het beschermde stadsgezicht en wordt omringd door monumentale panden, karakteristieke grachten en eeuwenoude straatjes. Op loopafstand bevinden zich musea, hofjes, boetiekjes, restaurants en cafés. Hier woont u letterlijk tussen de geschiedenis, in een levendige maar intieme binnenstad.

Achter de charmante monumentale gevel schuilt een warm en sfeervol woonhuis. De begane grond bestaat uit een open leefverdieping met keuken, eetkamer en zitkamer. De open haard vormt het hart van de ruimte en via de openslaande deuren heeft u direct toegang tot de zonnige tuin. De tuin biedt niet alleen rust en privacy, maar ook een achterom naar de Zuidsingel, een bijkeuken met wasmachine-opstelling en een overkapping voor fietsen, een zeldzame luxe op deze locatie.

Op de eerste etage bevindt zich aan de voorzijde een slaapkamer en een complete badkamer met douche, ligbad, wastafel en toilet. Aan de achterzijde ligt de sfeervolle master bedroom met openslaande deuren naar het royale dakterras, waar u in alle privacy kunt genieten van de historische daken en de stadse stilte.

De tweede etage is een open en lichte ruimte met authentieke kapconstructie en biedt volop mogelijkheden als extra slaapkamer, werkplek of atelier: passend bij het creatieve en academische karakter van Leiden.

BIJZONDERHEDEN

– Rijksmonument
– Gelegen in beschermd stadsgezicht
– Ouderdomsclausule van toepassing

Kalvermarkt 10 is een zeldzame combinatie van historisch wonen, buitenruimte en comfort, op een van de mooiste plekken van Leiden. Een woning met een verhaal, klaar voor een nieuw hoofdstuk.

Plan een bezichtiging

Neem contact op met:

Michiel de Jong RM

m.dejong@graalmakelaardij.nl

+31 (0)71 - 51 61 000 / +31 (0)6 - 18 71 88 87

Of geef uw voorkeur door: